At Peak to Peak Plumbing and Hydronics, we recognize that exceptional design and precise engineering are the cornerstones of reliable, energy-efficient hydronic and plumbing systems. Our commitment to excellence ensures that your heating and plumbing solutions not only perform flawlessly but also contribute to long-term savings.
Design & Engineering: Elevating Comfort and Efficiency
Our Process

Key Services
Comprehensive Energy Analysis:
Room-by-room assessments ensure precise heat distribution.
We tailor our designs to meet the specific needs of each space.
Cost-Effective Design:
Our experienced team designs systems that maximize performance without unnecessary expenses.
Every component is carefully selected to achieve the best results.
Heating System Configuration:
Using advanced engineering software and practical expertise, we determine the ideal size and layout for each component.
Energy requirements, room occupancy, and usage patterns all play a crucial role.
Balanced Sizing and Spacing:
We meticulously calculate tubing requirements, considering both performance and budget constraints.
Our goal is to optimize efficiency while maintaining cost-effectiveness.
What’s Included in Every Project:
Thorough Planning and Expert Layouts in Every Installation
Request a Quote
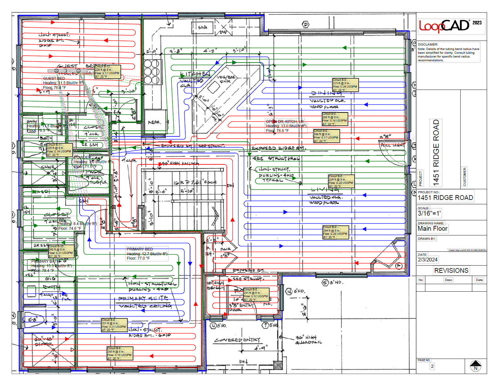
Tubing & Distribution Layout
- Detailed plans for tubing installation on each floor or grade.
- Clear visualizations and notes guide the process.
- Visualizes supply and return lines to each manifold.
- Notes provide essential information for installation.
Heating Zone Mapping
- Clearly defines independently controlled zones.
- Color-coordinated layouts enhance readability.
Mechanical Room Layout and Design
- Efficient venting routing for equipment.
- Precise placement and configuration details.
Mechanical Controls
- Comprehensive control schematics.
- Point-to-point wiring connections ensure seamless operation.
Equipment Schedule
- Detailed list of all project components.
- Pertinent information for coordination and maintenance.
Joe was super helpful. Got to my place same day, and was quick and efficient to fix the drain issues. Certainly will reach out to him with any future issues
